4 Bedroom Home for Sale in Brookhill Ln, Frisco

$549,900.00 - 4 Beds, 4 Baths, 2614 Sq Ft

5607 Brookhill Ln, Frisco, TX 75034, Frisco, TX 75034

Description

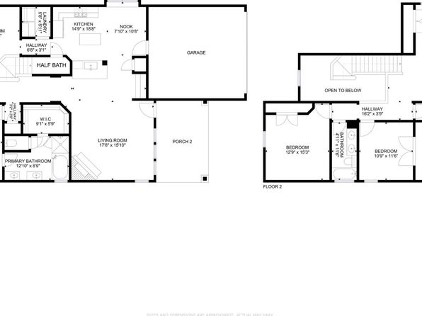
This stunning 4-bedroom, 4-bathroom home located at 5607 Brookhill Ln, Frisco, TX 75034, offers an exceptional living experience in one of Frisco’s most desirable neighborhoods. Spanning 2,614 square feet, this residence combines modern elegance with functional design, perfect for families or those seeking a spacious retreat. The open-concept layout features a gourmet kitchen with granite countertops, stainless steel appliances, and a large island, seamlessly connecting to the airy living area with high ceilings and abundant natural light. The master suite is a true haven, boasting a walk-in closet and a luxurious en-suite bathroom with dual vanities, a soaking tub, and a separate shower. Each additional bedroom is generously sized, offering ample space for family, guests, or a home office. The property also includes a beautifully landscaped backyard, ideal for outdoor entertaining or relaxation. Situated in the heart of Frisco, this home provides easy access to top-rated schools, shopping, dining, and major highways, making it an ideal choice for those seeking both convenience and comfort. With recent upgrades and meticulous maintenance, this home is move-in ready and offers a rare opportunity to own a piece of Frisco’s vibrant community. Don’t miss out on this exceptional property—schedule a viewing today to experience its charm and functionality firsthand. The home’s prime location and modern amenities make it a standout choice for discerning buyers looking for their dream home in Frisco, TX.

Features

  • Hardwood floors
  • Updated kitchen
  • Private backyard
  • 2-car garage
Contact Agent